带翼温度计套管
|
规格 |
立式 |
重量(L) |
L(mm) |
|
32×4 |
K |
50-500 |
1170 |
|
65×5 |
K |
1000 |
1310 |
|
65×5 |
K |
1500 |
1600 |
|
65×5 |
K |
2000 |
1680 |
|
65×5 |
K |
3000 |
1500 |
|
80×6 |
K |
5000 |
1600 |
|
65×5 |
K |
6000 |
1800 |
|
65×5 |
K |
5000 |
1700 |
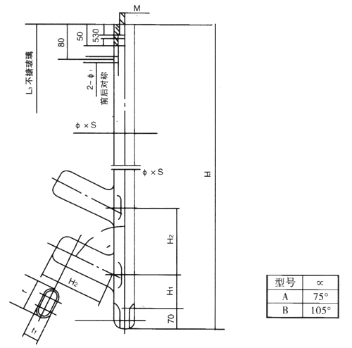
(K:开式 F:闭式)
|
公称直径 |
32 |
65 |
80 |
|
挡板Φ,×s, |
32×4 |
70×6 |
95×8 |
|
Φ×s |
32×4 |
65×5 |
80×6 |
|
M |
27×2(G3/4'') |
27×2(G3/4'') |
27×2(G3/4'') |
|
Φ1 |
11 |
13 |
13 |
|
L3 |
200 |
250 |
320 |
|
H1 |
130 |
170(200) |
200 |
|
H2 |
150 |
200(240) |
240 |
|
t×t1 |
38×19 |
86×43 |
116×58 |
|
H |
L+275 |
L+345 |
L+400 |
设计单位推荐和用户选择时,应选用具有搪玻璃设备配件生产许可证的企业的产品。并且要确认所购的产品的品种和规格,生产企业是否有资格生产(每个有证企业的生产许可证上都有准许本企业生产的产品品种和规格)。
虽然2007年10月国务院取消了搪玻璃设备生产许可证的管理(取消的原因并不是我国搪玻璃设备已台台质量合格,已不存在质量安全问题),但是,有证企业毕竟是经过国家权威部门审核,生产条件、人员素质、工装设备、检测条件、产品质量均符合发证条件的正规生产企业,我认为,在近两、三年内还应是用户选择的主要对象。需要特别提醒大家的是,目前,在搪玻璃行业存在严重的不规范现象:有些企业,规模小,有的就是家庭小作坊,没有压力容器制造能力,没有什么管理,没有专业技术人员,几个人合资建一台炉子,简单的工装,大量翻修破旧搪玻璃设备,刷上油漆后当新设备出售,牟取暴利。这种设备价格低,有的用户贪图便宜选购,但是这种设备无任何质量和安全保证,甚至存在着严重的安全隐患。有的用户买来作压力容器使用,其后果自然不堪设想。这种设备造成的惨痛教训也不少。因此,建议用户尽量到正规企业采购产品。
同时应尽量选用结构符合行业标准的产品,行业中有一小部分企业按照本企业的标准(这里指结构标准)组织生产。用户购买其企标产品后,由于种种原因需部分或全部替换其它企业生产的产品时,将会无法互换和安装。